SPZ系列
对称制动臂盘制动器
SPZ系列产品是一种高性能比、多功能的先进制动产品,广泛适用于集装箱起重机、卸船机、钢厂铸造起重机、水电桥机、升船机、缆机等设备的理想工作制动及紧急制动。
电力液压盘式制动器符合DIN15435标准和JB/T7020-2006标准。配套符合DIN15430标准的Ed系列推动器。
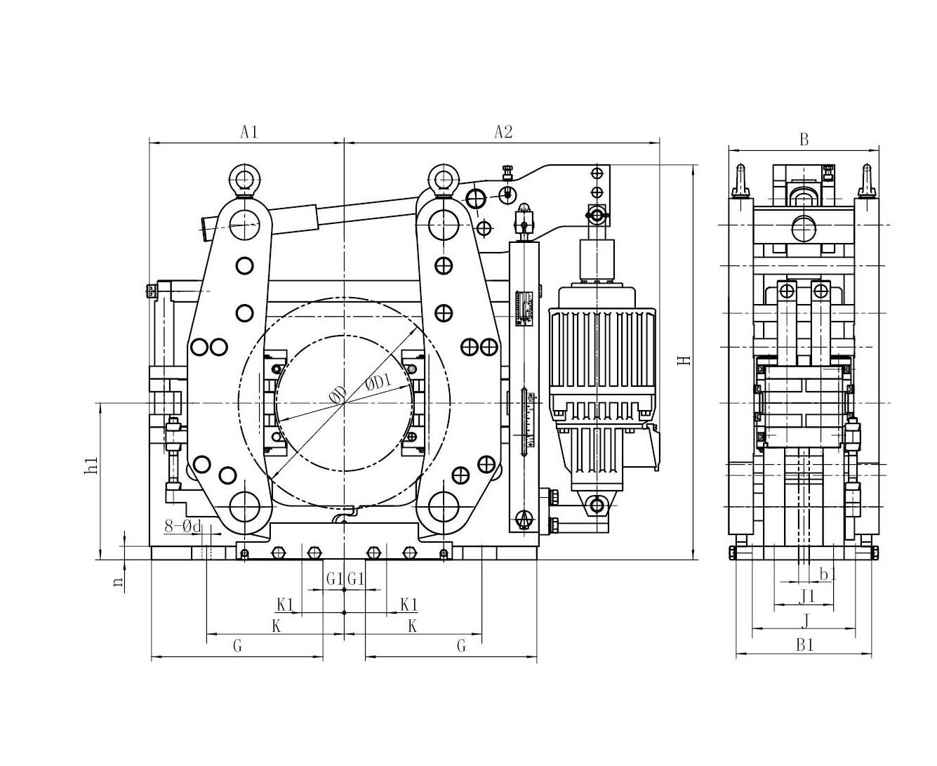
▲ 对中式结构设计,摒弃传统臂盘的偏置式,实现弹簧力作用于中心,对制动臂不产生扭力,延长轴套的使用寿命,提高传动效率。
▲ 传力系统结构的优化配置实现以单推动器的双施力点双制动点,大制动力矩的对称制动运作机理,较小空间位置内实现较大制动力矩。
▲ 通过两个对称点同时将制动力作用到制动盘上,从而补偿对轴产生的径向力。
▲ 附加方便手动释放装置、等退距装置、摩擦片磨损自动补偿和显示等多种功能配置的设计。磨擦片磨损后无需人工调整。
▲ 常闭式设计,(断电)弹簧制动,(通电)推动器释放。
◆环境温度:-20℃~50℃,使用地点的海拔高度符合GB755-2000。当低于-20°C时,推动器工作油改用YH-10航空液压油或按要求带加热器,详情参考Ed推动器样本。
◆周围工作环境中不得有易燃、易爆及腐蚀性气体,空气相对湿度不大于90。
◆一般用于三相交流电源:380V、50HZ。(根据需要可生产60Hz或不同的电压,请注意推动器铭牌,订货时事先说明)。
◆户外雨雪浸蚀或有腐蚀性气体和介质应采用防腐型产品。
● 产品型号:SPZ-500/E301/8,SPZ-710/E500/12,
● 适用盘径:320-710mm
● 制动力矩:3000-24000Nm


15565616959


